เราจะนําเสนอประสิทธิภาพวิธีการทํางานที่ปลอดภัยและพารามิเตอร์ทางเทคนิคของสวิตช์แรงดันกลาง XGN2-12
ขอบเขตของการใช้งาน
พอร์ต XGN-12 ประเภทกล่องสวิตช์โลหะคงที่ที่ปิด (เรียกว่าตู้เครือข่ายแหวน) เหมาะสําหรับ AC 50Hz, เครือข่าย 10KV เป็นการแบ่งโหลดและลัดวงจรและปิดกระแสลัดวงจรตู้เครือข่ายแหวนนี้ติดตั้งกลไกสปริงด้วยตนเองและไฟฟ้าเพื่อใช้งานสวิตช์โหลดและสวิตช์พื้นดินและสวิตช์แยกมีกลไกการทํางานด้วยตนเองตู้เครือข่ายแหวนนี้มีประสิทธิภาพที่สมบูรณ์แบบขนาดเล็กไม่มีอันตรายจากอัคคีภัยและการระเบิดและมีฟังก์ชั่น "ห้าป้องกัน" ที่เชื่อถือได้
ใช้สภาพแวดล้อม
ขีด จํากัด บนของอุณหภูมิแวดล้อมคือ 40 °Cและขีด จํากัด ล่างคือ -25 °C;
ระดับความสูงไม่เกิน 1000m;
ความชื้นสัมพัทธ์เฉลี่ยต่อวันของอากาศไม่เกิน 95% และค่าเฉลี่ยต่อเดือนไม่เกิน 90%; ค่าเฉลี่ยต่อวันของไอน้ําไม่เกิน 2.2x10-3Mpa และค่าเฉลี่ยต่อเดือนไม่เกิน 1.8 × 10-3Mpa
อากาศโดยรอบไม่กัดกร่อนหรือมลพิษอย่างเห็นได้ชัดจากก๊าซติดไฟและไอน้ํา
ไม่มีการสั่นสะเทือนที่รุนแรงปกติ
แบบจําลองและความหมาย
XGN□-□-□-□/□-□
--- ปัจจุบันความร้อนที่เสถียร (kA)
--- จัดอันดับปัจจุบัน (A)
วิธีการดําเนินงาน (J การดําเนินงานสปริง D การดําเนินงานแม่เหล็กไฟฟ้า)
- - หมายเลขแผนเดียว
แรงดันไฟฟ้าที่กําหนด
ออกแบบหมายเลขซีเรียล
- ภายในอาคาร
- - คงที่
ประเภทกล่อง
ใช้สภาพแวดล้อม
◆ขีด จํากัด บนของอุณหภูมิแวดล้อม 40 °Cขีด จํากัด ล่าง -25 °C (ในร่ม):
◆การจัดสรร 1000m;
(Whenระดับความสูงของน้ําเกิน 1000 เมตรจะต้องดําเนินการตามบทบัญญัติที่เกี่ยวข้องของ DUT593-1996 "แนวทางทางเทคนิคสําหรับการสั่งซื้อร่วมกันของสวิตช์แรงดันสูง");
◆ค่าเฉลี่ยต่อวันของความชื้นสัมพัทธ์ไม่เกิน 95% และค่าเฉลี่ยต่อเดือนไม่เกิน 90%:
ความรุนแรงของการสั่นสะเทือนของพื้นดินไม่เกิน 8 องศา
◆ไม่มีไฟอันตรายจากการระเบิดมลพิษร้ายแรงการกัดกร่อนของสารเคมีและสถานที่รบกวนอย่างรุนแรง
พารามิเตอร์ทางเทคนิคหลักของ สวิตช์เกียร์
หมายเลขซีเรียล | โครงการ | หน่วย | ข้อมูล |
1 | แรงดันไฟฟ้าที่จัดอันดับ | KV เคอร์ | 3、6、10 |
2 | แรงดันไฟฟ้าในการทํางานสูงสุด | KV เคอร์ | 3.5、8.9、11.5 |
3 | จัดอันดับปัจจุบัน | A | พฤษภาคม-00 |
4 | จัดอันดับการทําลายปัจจุบัน | kA | 16.20、31.5、40 |
5 | การลัดวงจรที่ได้รับการจัดอันดับ (การลัดวงจรที่ได้รับการจัดอันดับในปัจจุบัน) | kA | 40、50、80.100 |
6 | จัดอันดับลัดวงจรเสถียรภาพความร้อนในปัจจุบัน | kA | 16.20、31.5、40 |
7 | ได้รับการจัดอันดับสําหรับกระแสความร้อนที่เสถียร | kA | 40、50、80、100 |
8 | เวลาตั้งถิ่นฐานความร้อนได้รับการจัดอันดับ | s | 4 |
9 | ระดับการป้องกัน | IP | IP2X |
10 | ระบบ Busbar | - | บัสบาร์เดี่ยวถัดจากบัสบาร์เดียว |
11 | วิธีการทํางาน | - | ประเภทแม่เหล็กไฟฟ้าประเภทการจัดเก็บพลังงานสปริง |
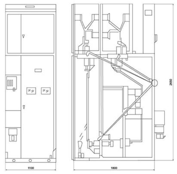
12 | ขนาด (ความกว้าง, × ความลึก, × ความสูง) | มม. | 1100 × 1200 × 2650 (ต่ํากว่า 1000A). |
13 | น้ําหนัก | กิโลกรัม | 1000 |
โครงสร้างและอุปกรณ์ป้องกันความผิดพลาด
โครงสร้าง
ตู้เป็นโครงสร้างหุ้มเกราะโลหะโครงกระดูกตู้เชื่อมด้วยเหล็กมุมและตู้แบ่งออกเป็นห้องเบรกเกอร์ห้องบัสบาร์ห้องสายเคเบิลและห้องรีเลย์และการทํางานของส่วนประกอบหลักในตู้สามารถสังเกตได้ผ่านหน้าต่างสังเกตและแสงสว่างบนซุ้มเพื่อปรับปรุงประสิทธิภาพทางเทคนิคของสวิตช์ชิ้นส่วนหลัก (เช่นเบรกเกอร์สวิตช์ตัดการเชื่อมต่อแบบหมุน ฯลฯ)ได้รับการออกแบบใหม่
ตามรูปแบบของตู้ห้องรีเลย์ติดตั้งด้วยรีเลย์ประตูสามารถติดตั้งสัญญาณรีเลย์เครื่องมือแสดงสถานะสัญญาณไฟการติดตั้งสวิตช์ถ่ายโอนและห้องปฏิบัติการด้านหลังเป็นห้องบัสบาร์ส่วนล่างเป็นห้องสายเคเบิลผู้ใช้สามารถเดินสายได้อย่างง่ายดายด้านหน้าเป็นห้องเบรกเกอร์ซึ่งอํานวยความสะดวกในการบํารุงรักษาสวิตช์กลไกภายในของตู้แสดงในรูปที่ 1 รูปที่ 2 และคู่มือผลิตภัณฑ์
อุปกรณ์ป้องกันความผิดพลาด
ฟังก์ชั่น "ห้าการป้องกัน" คือ: เพื่อป้องกันการตัดการเชื่อมต่อและการเชื่อมต่อที่ผิดพลาดของเบรกเกอร์ ป้องกันการระบุผิดพลาดและการปิดสวิตช์ตัดการเชื่อมต่อกับโหลด ป้องกันการปิดเครื่องสดและสวิตช์พื้นดิน ป้องกันการเปิดแหล่งจ่ายไฟเมื่อเปิดและปิดพื้นดิน ป้องกันการเข้าผิดพลาดในช่วงเวลาที่มีชีวิต
สวิตช์นี้ใช้วิธีการล็อคแบบบังคับและอุปกรณ์ป้องกันข้อผิดพลาดประกอบด้วยส่วนประกอบหลัก ๆ เช่นการสนับสนุนแผ่นดิสก์แผงแผ่นล็อคที่จับและแท่งเชื่อมต่อซึ่งมีลักษณะของประสิทธิภาพที่เชื่อถือได้ฟังก์ชั่นที่สมบูรณ์โครงสร้างที่เรียบง่ายและใช้งานง่ายเพื่อให้บรรลุ "ห้าการป้องกัน" ได้อย่างง่ายดายและมีประสิทธิภาพ:
(1)สวิตช์ควบคุม (สวิตช์ KW) ที่มีแผ่นสีแดงและสีเขียวถูกนํามาใช้ในรูปแบบเบรกเกอร์เพื่อป้องกันการตัดการเชื่อมต่อและการปิดเบรกเกอร์ผิดพลาด
(2)เฉพาะหลังจากที่เบรกเกอร์ถูกตัดการเชื่อมต่อแล้วที่จับขนาดเล็กสามารถดึงออกจากตําแหน่ง "ทํางาน" และโทรออกไปทางขวาไปยังตําแหน่ง "การล็อคการตัดการเชื่อมต่อ"; สวิตช์แยกแยกและปิด ป้องกันการแบ่งโหลดและปิดสวิตช์แยกความน่าเชื่อถือของการล็อคและป้องกันการล็อคมีฟังก์ชั่นการป้องกันข้อผิดพลาดคู่นั่นคือเมื่อที่จับขนาดเล็กอยู่ในตําแหน่ง "การตัดการเชื่อมต่อและการล็อค" ก็สามารถปิดและแบ่งสวิตช์แยกบนและล่างและไม่สามารถปิดเบรกเกอร์เพื่อหลีกเลี่ยงการปิดเบรกเกอร์ผิดพลาด
(3)เมื่อเบรกเกอร์และสวิตช์แยกบนและล่างอยู่ในสถานะปิดและที่จับขนาดเล็กอยู่ในตําแหน่ง "ทํางาน" ประตูตู้ด้านหน้าและด้านหลังไม่สามารถเปิดได้เพื่อป้องกันไม่ให้เข้าสู่ช่วงเวลาสดโดยไม่ได้ตั้งใจ
(4)เมื่อเปิดสวิตช์แยกบนและล่างสวิตช์สายดินไม่สามารถปิดได้และที่จับขนาดเล็กไม่สามารถโทรออกจากตําแหน่ง "break-lock" ไปยังตําแหน่ง "บํารุงรักษา" ซึ่งสามารถป้องกันไม่ให้สายดินแขวนอยู่ได้
(5)หากสวิตช์สายดินไม่ได้เปิดสวิตช์แยกบนและล่างไม่สามารถปิดได้ซึ่งสามารถป้องกันไม่ให้สวิตช์ตัดการเชื่อมต่อกับสายดินปิด
รูปแบบ XGN■-12/07D (รูปที่ 1)

1.ห้องบัสบาร์ 2ห้องเคเบิ้ล 3รถบัสสายดิน 4กลไกแม่เหล็กไฟฟ้า (สปริง) 5วงจรใหม่ห้องอุปกรณ์
6.การดําเนินงานด้วยตนเองและกลไกการขายร่วมกัน 7ห้องปฏิบัติการ 8.ช่องปล่อยแรงดัน 9ห้องเครื่องดนตรี 10สถานีขนส่งขนาดเล็ก
XGN-12 (เต้าเสียบสายเคเบิลบายพาส) โครงร่าง (รูปที่ 2)

ภาพวาดการติดตั้งมิติ

