เราจะนําเสนอประสิทธิภาพวิธีการใช้งานที่ปลอดภัยและพารามิเตอร์ทางเทคนิคของหม้อแปลงติดตั้ง ZจีS-12

1. บทบัญญัติทั่วไป
คู่มือนี้ใช้เพื่อช่วยเหลือวิศวกรและช่างเทคนิคในการติดตั้งการใช้งานและการดําเนินงานของหม้อแปลงไฟฟ้ารวม (ต่อไปนี้จะเรียกว่า combinators)
หม้อแปลงไฟฟ้าแบบรวมที่ผลิตโดยโรงงานของเราเป็นหม้อแปลงไฟฟ้าแบบสามเฟสแบบฉนวนกันความร้อนและปิดผนึกอย่างเต็มที่สําหรับการติดตั้งบนม้านั่งซึ่งเหมาะสําหรับ ระบบการกระจายสามเฟสด้วย แรงดันไฟฟ้าที่กําหนดของ 10เควี.เป็นไปตามข้อกําหนดของมาตรฐานระดับชาติที่เกี่ยวข้อง
คู่มือนี้ไม่ได้เป็น subcenium สําหรับขั้นตอนการดําเนินงานทั่วไปของอุปกรณ์ไฟฟ้าและไม่สามารถตอบสนองความต้องการทั้งหมดของการติดตั้งการใช้งานและการดําเนินงาน.งานเหล่านี้ควรดําเนินการกับบุคลากรที่คุ้นเคยกับความปลอดภัยและขั้นตอนการทํางานของระบบไฟฟ้า
2. เงื่อนไขการใช้งานและสภาพแวดล้อม
ก.ระดับความสูง: ไม่เกิน 1000M
ข.อุณหภูมิโดยรอบ: -25C ถึง 40C
ค. (c)ความชื้นสัมพัทธ์: ไม่เกิน 95% (ค่าเฉลี่ยต่อวัน)
ง.ความเอียงของพื้นดิน: ไม่มีการออกกําลังกาย 3
อี.ความเร็วลม: ไม่เกิน 35m / s
สถานที่ในร่มและกลางแจ้งโดยไม่มีแรงกระแทกและการสั่นสะเทือนที่รุนแรงไม่มีมลพิษร้ายแรงและสื่อการกัดกร่อนทางเคมีและไม่มีอันตรายจากการระเบิด
3.พารามิเตอร์ทางเทคนิคหลัก
หมายเลขซีเรียล | ชื่อ | หน่วย | ด้านแรงดันสูง | หม้อแปลง | ด้านแรงดันต่ํา |
1 | แรงดันไฟฟ้าที่จัดอันดับ | เควี | 10 | 0.4 | |
2 | แรงดันไฟฟ้าในการทํางานสูงสุด | เควี | 12 | ||
3 | กําลังการผลิตสูงสุด | เควีA | 50-2500 | ||
4 | จัดอันดับปัจจุบัน | A | 10-630 | 100-2500 | |
5 | ทนต่อกระแสไฟฟ้าเป็นเวลาสั้น ๆ | เค เคA | 12.5/20 | 12.6-40 | |
6 | เวลาความอดทนสั้น | S | 2 | 1 | |
7 | สูงสุดทนต่อปัจจุบัน | เค เคA | 50 | 30-60 | |
8 | ความถี่พลังงานทนต่อความดัน | เควี | 35 | 35 | 5 |
9 | ผลกระทบจากฟ้าผ่า ทนต่อแรงกดดัน | เควี | 75 | 75 | |
10 | ฟิวส์จํากัดกระแสไฟฟ้าแรงสูงตัดกระแสไฟฟ้าได้อย่างรวดเร็ว | เค เคA | 50 | ||
11 | ระดับการป้องกัน | IP33 | Ip65 | IP33 | |
12 | ระดับรบกวน | ดีบี | W55 | ||
13 | ความถี่ที่ได้รับการจัดอันดับ | เฮิตซ์ | 50/60 |
4. การตรวจสอบการยอมรับการแกะกล่อง
ตรวจสอบผลิตภัณฑ์เพื่อความเสียหายการเปลี่ยนรูปและการแตกหักตรวจสอบว่าอุปกรณ์เสริมและเครื่องมือพิเศษครบตามรายการบรรจุภัณฑ์หรือไม่และ ติดตั้ง ตามข้อกําหนดการติดตั้งหลังจากยืนยันว่าถูกต้อง
5.การติดตั้ง
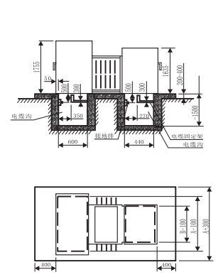
ก.ชุดประกอบติดตั้งบนฐานคอนกรีตที่มีความสูง 100-400 มม. จากพื้นดินที่เพียงพอที่จะรับน้ําหนักของชุดประกอบแผนภาพขนาดที่แนะนําของขนาดประกอบและฐานจะแสดงในภาคผนวก 1
บี. (ข)สายเคเบิลจะถูกวางไว้ก่อนที่กลุ่มจะอยู่ในสถานที่และต้องไม่มีไฟฟ้า
ค.มีตะขอสําหรับโหลดและขนถ่ายใกล้ด้านบนของกล่องและมุมระหว่างสายเหล็กยกและเส้นแนวตั้งไม่สามารถเกิน 30 เมื่อยืดหากจําเป็นควรใช้ไม้กางเขนเพื่อสนับสนุนสายเหล็กเพื่อหลีกเลี่ยงการเปลี่ยนรูปของโครงสร้างหรือตะขอยกน้ําหนักส่วนใหญ่ของหม้อแปลงประกอบมีความเข้มข้นในกล่องหลักที่มีแกนเหล็กขดลวดและน้ํามันฉนวนกันความร้อนและกล่องขั้วไฟฟ้าสูงและต่ําส่วนใหญ่ว่างเปล่าและน้ําหนักค่อนข้างเบา(การใช้ตะขอหรือเครนที่ไม่เหมาะสมอาจทําให้ชุดประกอบหรืออุปกรณ์เสริมอื่น ๆ เสียหายหรือทําให้บุคลากรได้รับบาดเจ็บ))
หมายเหตุ: หากหม้อแปลงกลุ่มไม่สามารถยกโดยเครนได้สามารถเลื่อนด้วยสเก็ตบอร์ดหรือลูกกลิ้งเมื่อสนับสนุนกล่องและใส่ ลูกกลิ้งด้านล่างต้องมีแจ็คอย่างน้อยสองตัวและควรยกมุมสองมุมที่อยู่ติดกันอย่างราบรื่นในเวลาเดียวกันเพื่อหลีกเลี่ยงการเปลี่ยนรูปของด้านล่างของกล่องแจ๊ค สามารถวางไว้ที่มุมด้านล่างของกล่องเท่านั้นและควรเพิ่มแผ่นรองและแจ็คไม่ควรวางอยู่ใต้อ่างระบายความร้อนวาล์วหรือเหล็กบาง จานหากใช้ลูกกลิ้งจํานวนควรเหมาะสมและน้ําหนักของกล่องควรดําเนินการอย่างเท่าเทียมกันก่อนดึงหม้อแปลง, ติดตั้งแหวนดึงที่ด้านล่างของหม้อแปลงกล่องทั้งสองด้านอย่าแนบสายเคเบิลกับชิ้นส่วนหล่อหรือชิ้นส่วนโลหะแผ่นอื่น ๆ ที่จัดกลุ่มใหม่
ง.เว็บไซต์ติดตั้ง
น้ํามันฉนวนกันความร้อนมีสองประเภทในองค์ประกอบหนึ่งคือน้ํามันจุดจุดจุดระเบิดสูงและอีกประเภทหนึ่งคือน้ํามันแร่คุณภาพสูงหม้อแปลงกลุ่มที่มีน้ํามันจุดระเบิดสูง (มีสัญญาณที่เห็นได้ชัดใน ห้องแยกแรงดันไฟฟ้าต่ําของหม้อแปลงกลุ่ม) สามารถใช้ในอาคารหรือกลางแจ้ง องค์ประกอบของน้ํามันแร่ไม่สามารถใช้ใน อาคารจุดแช่แข็งของน้ํามันแร่คุณภาพสูงคือ -45.ต่อไปนี้; จุดแช่แข็งของน้ํามันจุดระเบิดสูงคือ -30 1.การรวมกันของน้ํามันจุดระเบิดสูงไม่สามารถใช้ในพื้นที่ที่มีอุณหภูมิแวดล้อมต่ํากว่า -30 °C.ไม่ว่าจะเป็นการผสมผสานของน้ํามันแร่คุณภาพสูงหรือน้ํามันจุดระเบิดสูงหากนําไปใช้เมื่ออุณหภูมิโดยรอบต่ํากว่า -20 องศาเซลเซียสจําเป็นต้องใช้งานเป็นเวลา 24 ชั่วโมงโดยไม่ต้องโหลดสําหรับการอุ่นล่วงหน้าแล้วค่อยๆโหลดหากมีข้อสงสัยโปรดติดต่อโรงงานของเรา.
6.การทดสอบการส่งมอบ
หลังจากติดตั้งเสร็จแล้วให้เชื่อมต่อปลั๊กสายเคเบิลทดสอบ (ปลั๊กสายเคเบิลทดสอบสามารถซื้อได้เป็นตัวเลือก) และดําเนินการทดสอบการส่งมอบตามขั้นตอนการทดสอบที่เกี่ยวข้องของมาตรฐานแห่งชาติ.
7.ข้อควรระวังในการติดตั้ง
ก.เมื่อเข้าถึงระบบ
ก่อนที่จะเดินสายไฟระบบใด ๆ, พื้นกล่องก่อนเทอร์มินัลสายดินของกล่องจะต้องเชื่อมต่อกับจุดสายดินคงที่และมีความต้านทานต่ํา
ก่อนเดินสายไฟให้ทําความสะอาดแขนบูชขั้วเทอร์มินัลและคอนแทคทั้งหมดและทําความสะอาดฝุ่นน้ํามันและสิ่งแปลกปลอม การเชื่อมต่อจุดที่เป็นกลางของการเปลี่ยนแปลงกลุ่มและจุดที่เป็นกลางของระบบ
ติดตั้งอุปกรณ์เสริมตามความจําเป็นเพื่อให้แน่ใจว่าน้ํามันฉนวนอยู่ในความสูงที่เหมาะสม
เมื่อไม่มีใครปฏิบัติหน้าที่ให้ปิดและล็อคประตูกล่อง
8.เมื่อดําเนินการ
☆ภายใต้สถานการณ์ปกติควรดําเนินการใส่ฟิวส์หลังจากตัดไฟและควรอ่านคําแนะนําการใช้งานที่เกี่ยวข้องอย่างละเอียดก่อนใช้งาน
☆สวิตช์โหลดภายในสามารถใช้เพื่อขัดจังหวะกระแสไฟฟ้าได้ แต่ไม่ตัดการเชื่อมต่อกระแสไฟฟ้าที่ผิดพลาด
☆ต้องใช้คันโยกการทํางานแบบฉนวนกันความร้อนในการใช้งานสวิตช์โหลด
ค.เมื่อจําเป็นต้องบํารุงรักษา
☆หม้อแปลงกลุ่มไม่สามารถยกเครื่องในขณะที่ระบบทํางานอยู่ก่อนการบํารุงรักษาควรหุ้มฉนวนปิดเครื่องและแยกออกจากหม้อแปลงกลุ่มอย่างสมบูรณ์
☆ใช้งานฟิวส์ปลั๊กเปิดวาล์วฉีดน้ํามันและปล่อยความดันภายในของหม้อแปลง (ดึงวาล์วระบายความดันออก) ก่อนที่จะเปิดถังน้ํามันและอย่าดําเนินการข้างต้นก่อนที่ความดันภายในจะเป็นศูนย์
คําเตือน: ก๊าซที่ปล่อยออกมาอาจติดไฟได้ดังนั้นควรระมัดระวังเมื่อปล่อยออกมา
อย่าเปิดฝาของกล่องหม้อแปลงกลุ่มเว้นแต่จําเป็นอย่างยิ่งก่อนที่จะเปิดทําความสะอาด ผู้นําของ พื้นที่รอบฝาปิดและปิดในเวลาที่สั้นที่สุดเพื่อป้องกันความชื้นและฝุ่นละออง จากการเข้ากล่องอย่าเปิดการเปลี่ยนกลุ่มในสภาพอากาศเปียกหรือฝนตก
8.การดําเนินงาน
ก.ตรวจสอบก่อนการว่าจ้าง
☆ตรวจสอบว่าข้อต่อสายเคเบิลเชื่อมต่อตามที่ต้องการหรือไม่และข้อต่อปลอกและปลั๊กข้อศอกเชื่อมต่อในสถานที่หรือไม่
☆ข้อต่อสายเคเบิลทั้งหมดและสายดินของกล่องจะต้องเชื่อมต่อกับจุดสายดินที่มีเสถียรภาพและมีความต้านทานต่ํา
☆หลังจากยืนยันว่าไม่มีปัญหาแล้วสามารถนําไปใช้งานได้
☆ก่อนที่จะนําหม้อแปลงกลุ่มไปใช้งานต้องตรวจสอบความสูงของระดับน้ํามันในกล่องและควรอ่านความสูงของระดับน้ํามันโดยตรงจากเครื่องวัดระดับน้ํามันและระดับน้ํามันควรอยู่ในตําแหน่งที่ระบุไว้ของเครื่องวัดระดับน้ํามันที่ 25 °Cที่ 25 °C
หมายเหตุ: ก่อนที่จะนําการเปลี่ยนแปลงกลุ่มไปใช้งานคุณควรมีความเข้าใจอย่างลึกซึ้งเกี่ยวกับการเปลี่ยนแปลงกลุ่มตรวจสอบให้แน่ใจว่าคุณคุ้นเคยกับการใช้งานและฟังก์ชันของอุปกรณ์และอุปกรณ์เสริมทั้งหมดโปรดสวมใส่เสื้อผ้าป้องกันและอุปกรณ์ป้องกันที่จําเป็นในระหว่างการใช้งานและใช้คันโยกการใช้งานที่ฉนวนกันความร้อนเมื่อต่อสายดินทดสอบแยกหรือปิดอุปกรณ์เมื่อไม่สามารถกําหนดสถานะการจัดกลุ่มใหม่ได้จะถือว่าเป็นการรักษาสด
บี. (ข)การเตรียมการสําหรับการว่าจ้าง
ก.น้ํามันเติม
เมื่อจําเป็นควรเติมน้ํามันให้ทันเวลา
☆ใช้ปั๊มและท่อที่ไม่ปนเปื้อน; ห้ามใช้ท่อยางเนื่องจากน้ํามันจะละลายกํามะถันที่มีอยู่ในนั้นจึงควรใช้ท่อโลหะหรือท่อที่ไม่ใช่ยาง
☆เชื่อมต่อท่อระบายน้ํามันของปั๊มน้ํามันกับพอร์ตฉีดน้ํามันของถังน้ํามัน
☆ปั๊มน้ํามันกลับจากด้านล่างของภาชนะบรรจุชั่วคราวที่ปิดสนิทโดยระมัดระวังไม่ให้ท่อระบายน้ํามันดึงอากาศ
☆เพื่อป้องกันอัตราเงินเฟ้อการไหลของน้ํามันความเร็วสูงให้ปั๊มช้า ๆ จนกว่าระดับน้ํามันจะจําเป็น
ข.การต่อสายดิน
พื้นดินเฉพาะบนตู้หม้อแปลงจะต้องเชื่อมต่อกับจุดสายดินถาวร
ค. (c)การเดินสายไฟแรงสูง
☆ชุดประกอบมีซ็อกเก็ตปลอกแรงดันสูงสากลแขนแบบ Single-pass หรือ Double-pass ที่จับคู่กับซ็อกเก็ตปลอกจะต้องเสียบในสนามวิธีการติดตั้งของแขนแบบผ่านเดี่ยวและผ่านคู่แสดงในภาคผนวก 3
☆ติดตั้งปลั๊กสายสลับบนสายไฟแรงสูงตามวิธีการติดตั้งที่อธิบายไว้ในภาคผนวก 4 แล้วใส่ปลั๊กสลับลงในแขนผ่านเดี่ยวหรือคู่
ง.การเดินสายไฟแรงดันไฟฟ้าต่ํา
มีขั้วต่อลวดสามเฟสและเป็นกลางบนหม้อแปลงประกอบสําหรับเชื่อมต่อสายไฟแรงดันต่ํา
แจ้งเตือน: กลุ่มสามารถดําเนินงานได้ที่การจัดอันดับที่ระบุไว้บนป้ายชื่อเท่านั้นและการดําเนินงานเกินพิกัดในระยะยาวจะส่งผลกระทบอย่างมีนัยสําคัญต่ออายุขัยหากกลุ่มถูกเก็บไว้กลางแจ้งนานเกินไปต้องนําตัวอย่างน้ํามันเพื่อตรวจสอบความชื้นและความแข็งแรงของฉนวนเมื่อกลุ่มออกจากโรงงานโดยทั่วไปจะมีสูญญากาศต่ําเหนือพื้นผิวน้ํามันในกล่อง (เครื่องวัดความดันแสดงความดันลบ) ซึ่งอาจเปลี่ยนแปลงไปตามการเปลี่ยนแปลงการดําเนินงานหรือสภาพแวดล้อมภายใต้สถานการณ์ปกติหากเครื่องวัดความดันแสดงความดันเป็นศูนย์เป็นเวลานานแสดงว่าอาจมีการรั่วไหลและจําเป็นต้องมีการตรวจสอบเพิ่มเติม
ค.ความต้องการในการดําเนินงาน
☆ก่อนที่จะดําเนินการสถานะการทํางานของสายและตําแหน่งของเครื่องเปลี่ยนก๊อกควรจะเข้าใจและสวิตช์โหลดควรจะอยู่ในตําแหน่งที่ตัดการเชื่อมต่อจากหม้อแปลง;
☆ทําความเข้าใจวัตถุประสงค์และฟังก์ชั่นของต่อมสายเคเบิลทั้งหมดก่อนการดําเนินงาน
☆ผู้ประกอบการควรยืนอยู่ในตําแหน่งที่ดีที่สุดและใช้คันโยกการดําเนินงานฉนวนกันความร้อนเพื่อใช้งานโหลดก่อนการดําเนินงาน
☆ตามกฎระเบียบการทํางานแรงดันสูงที่เกี่ยวข้องต้องใช้อุปกรณ์ป้องกันที่จําเป็นเพื่อความปลอดภัย
ง.ส่งกําลังไฟฟ้า
ปิดสวิตช์ระดับก่อนหน้านี้แล้วเปิด สวิตช์โหลดไปยังตําแหน่งของการเชื่อมต่อหม้อแปลงตามความต้องการของ 8 3, และหม้อแปลงกลุ่มจะถูกนําไปใช้งาน
9.สิ่งที่แนบมา
ก.เครื่องเปลี่ยนแตะ
☆กลุ่มตัวแปรแตะเปลี่ยนเป็นแตะเปลี่ยนโหลดฟรีและการดําเนินงานแตะเปลี่ยนสามารถดําเนินการได้เมื่อได้รับการยืนยันว่าไฟถูกตัด
☆เครื่องแลกเปลี่ยนมีเกียร์สามหรือห้าเกียร์ทําเครื่องหมายด้วย A, บี, C, D และ อี และช่วงการแตะออกคือ 10เควี ± 5% หรือ 10เควี ± 2 * 2 5%
☆ด้ามจับการใช้งานรูปตัว "T" ของเครื่องเปลี่ยนก๊อกถูกติดตั้งไว้บนแผงของห้องแรงดันสูงก่อนการใช้งานสลักเกลียวล็อคจะถูกคลายออกแล้วหมุนไปยังตําแหน่งที่ต้องการและสลักเกลียวล็อคจะถูกกระชับหลังจากการปรับในการเพิ่มล็อคคุณสามารถกระชับสลักเกลียวล็อคต่ําและล็อคด้วยกุญแจ
หมายเหตุ: ควรปิดหม้อแปลงกลุ่มก่อนใช้งานเครื่องเปลี่ยนก๊าซมิฉะนั้นจะทําให้เกิดความเสียหายต่อกลุ่มและอาจนําไปสู่การบาดเจ็บสาหัสส่วนบุคคล
สวิตช์โหลด
☆สวิตช์โหลดเป็นสวิตช์เชื่อมโยงสามเฟสที่มีโครงสร้างการทํางานของสปริงอย่างรวดเร็วมีให้เลือก 2 แบบ คือ 2 ตําแหน่ง และ 4 ตําแหน่งในหมู่พวกเขา 2 ตําแหน่งใช้สําหรับหม้อแปลงประเภทเทอร์มินัลและ 4 ตําแหน่งใช้สําหรับหม้อแปลงประเภทเครือข่ายแหวน
☆สวิตช์โหลดสามารถใช้เฉพาะเพื่อขัดจังหวะกระแสโหลดไม่ใช่กระแสลัดวงจร
☆ต้องใช้แท่งทํางานแบบฉนวนกันความร้อนในการใช้งานสวิตช์โหลด
ฟิวส์แทรก
☆ฟิวส์แบบปลั๊กอินให้ความสะดวกในการเปลี่ยนฟิวส์จากภายนอกตามที่แสดงในภาคผนวก 2 สําหรับวิธีการเปลี่ยนฟิวส์
☆ความสามารถในการรวมกันที่แตกต่างกันข้อกําหนดของฟิวส์ที่ใช้แตกต่างกันดังนั้นคุณต้องใส่ใจเมื่อเปลี่ยนฟิวส์รุ่นฟิวส์ที่เลือกทั้งหมดถูกทําเครื่องหมายอยู่ด้านในของประตูของห้องแรงดันสูงหม้อแปลงแต่ละกลุ่มและต้องเลือกฟิวส์ประเภทเดียวกันเมื่อเปลี่ยนฟิวส์และรุ่นฟิวส์ที่เลือกสําหรับหม้อแปลงกล่องที่มีความจุแตกต่างกันมีดังนี้:
ความจุ | ข้อมูลจําเพาะของฟิวส์แทรก |
100 | 4038108C06 |
125 | 4038108C07 |
160 | 4038108C07 |
200 | 4038108C09 |
250 | 4038108C09 |
315 | 4038108C09 |
400 | 4038108C12 |
500 | 4038108C12 |
630 | 4038108C12 |
800 | 4038108C14 |
1000 | 4000353C16 |
1250 | 4000353C16 |
1600 | 4000353C17 |
ง.อุปกรณ์เสริมสายเคเบิล
อุปกรณ์เสริมสายเคเบิล: ปลั๊กข้อศอก, แขนผ่านเดี่ยว (หรือแขนผ่านคู่), ขั้วต่อผ่านเดี่ยว (หรือขั้วต่อผ่านคู่), หมวกป้องกันฉนวนกันความร้อน ดูภาคผนวก 3-5ตามลําดับ
อี.ตัวจับไฟกระชาก
หากคุณจําเป็นต้องติดตั้งตัวหยุดฟ้าผ่าในกลุ่มคุณสามารถเลือกตัวหยุดสังกะสีออกไซด์ชนิดฉนวนกันความร้อนแบบเต็มรูปแบบในระหว่างการติดตั้งรถไฟกลุ่มนํามา ปลอกแบบผ่านสองครั้งปลายด้านหนึ่งของปลอกแบบผ่านสองครั้งเชื่อมต่อกับปลั๊กชนิดข้อศอกและปลายอีกด้านหนึ่งเชื่อมต่อกับตัวจับสายฟ้าวิธีการติดตั้งตัวลดไฟกระชาก:
☆เชื่อมต่อสายดินกับสายดินระบบ
☆ใช้ลวดทองแดงเพื่อเชื่อมต่อปลายสายดินของตัวจับกับสายดินของระบบ
☆ใช้พื้นผิวสัมผัสของตัวจับหล่อลื่นที่จัดทําโดยโรงงานแห่งนี้
☆ใช้คันโยกการดําเนินงานฉนวนกันความร้อนเพื่อติดตะขอหลุมการดําเนินงานของตัวจับและใส่ตัวจับลงในข้อต่อปลอกด้วยแรงและให้แน่ใจว่าใส่ตัวจับไว้ในสถานที่หมายเหตุ: ต้องถอดตัวจับออกและติดตั้งใหม่หลังจากการทดสอบ
F - รูปถ่ายของ โรงแรมเดอะ คริสเทล. (เอฟ)ตัวบ่งชี้ความผิดพลาดและจอแสดงผลแรงดันไฟฟ้า
ดูภาคผนวก 6
10.การบํารุงรักษา
ก.การบํารุงรักษาภายนอก
ตรวจสอบพื้นผิวภายนอกทั้งหมดขององค์ประกอบเป็นประจํา, และซ่อมแซมทันทีหากการเคลือบมีรอยฟกช้ํารอยขีดข่วนและการสึกหรอ
บี. (ข)การบํารุงรักษาภายใน
ตรวจสอบอุปกรณ์เสริมและเครื่องมือทั้งหมดในห้องแรงดันสูงและต่ําของกลุ่มเป็นประจําว่าทํางานได้ตามปกติหรือไม่และตรวจสอบว่ามีการรั่วซึมในแต่ละชิ้นส่วนซีลหรือไม่
ภาคผนวก 1 ขนาดหม้อแปลงรวมและการติดตั้ง
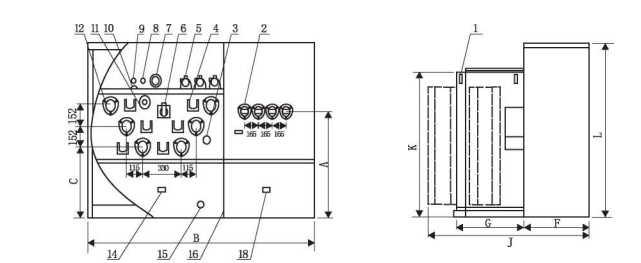
| 1 ตะขอ 11 เครื่องวัดอุณหภูมิน้ํามัน 2 ปลอกแรงดันไฟฟ้าต่ํา 12 ซ็อกเก็ตปลอกแรงดันสูง 3 แทปเปลี่ยน 13 ฮีทซิงค์ 4 ติดผนัง 14 ห้องแรงดันสูงสายดิน 5 ฟิวส์ปลั๊กอิน 15 วาล์วระบายน้ํามัน 6 สวิตช์โหลด 16 ฉากกั้น 7 เครื่องวัดความดัน 17 ถังน้ํามันเชื้อเพลิง 8 วาล์วบรรเทาความดัน 18 การต่อสายดินของห้องแรงดันต่ํา 9 พอร์ตฉีดน้ํามัน 19 ห้องแรงดันสูง 10 เครื่องวัดระดับน้ํามัน 20 ป้ายชื่อ |
รูป 1-1แผนภาพมิติของประเภทตาข่ายแหวนมาตรฐานและปลาคาร์พ crucian เทอร์มินัลรวมกด
ความจุองค์ประกอบ (kVA) | A | บี | C | D | อี | F - รูปถ่ายของ โรงแรมเดอะ คริสเทล | จี | เอช | เจ | เค เค | แอล |
100 | 1030 | 1971 | 680 | 1091 | 880 | 536 | 560 | 1350 | 1176 | 1346 | 1580 |
125 | 1030 | 1971 | 680 | 1091 | 880 | 536 | 560 | 1350 | 1176 | 1346 | 1580 |
160 | 1030 | 1971 | 680 | 1091 | 880 | 536 | 560 | 1350 | 1176 | 1346 | 1580 |
200 | 1030 | 1971 | 680 | 1091 | 880 | 536 | 560 | 1350 | 1176 | 1346 | 1580 |
250 | 1030 | 1971 | 680 | 1091 | 880 | 536 | 560 | 1350 | 1335 | 1346 | 1580 |
315 | 1030 | 1971 | 680 | 1091 | 880 | 536 | 560 | 1350 | 1335 | 1346 | 1580 |
400 | 1030 | 1971 | 680 | 1091 | 880 | 536 | 560 | 1350 | 1335 | 1346 | 1580 |
500 | 1030 | 1971 | 680 | 1091 | 880 | 536 | 560 | 1350 | 1335 | 1346 | 1580 |
630 | 1290 | 2000 | 796 | 963 | 1037 | 660 | 660 | 1440 | 1540 | 1486 | 1710 |
800 | 1290 | 2000 | 796 | 963 | 1037 | 660 | 660 | 1440 | 1675 | 1486 | 1710 |
1000 | 1290 | 2000 | 796 | 963 | 1037 | 660 | 660 | 1440 | 1765 | 1486 | 1710 |
1250 | 1200 | 2205 | 836 | 1158 | 1047 | 660 | 760 | 1440 | 1865 | 1486 | 1710 |
1600 | 1200 | 2205 | 836 | 1213 | 992 | 660 | 800 | 1700 | 1920 | 1526 | 1710 |
หมายเหตุ: (๑)มิติข้างต้นมีไว้สําหรับการอ้างอิงเท่านั้น
(๒)ประเภทเทอร์มินัลและประเภทตาข่ายแหวนมีขนาดโดยรวมเหมือนกัน
|
|
รูป 1-3แผนผังการติดตั้งหม้อแปลงรวมมาตรฐาน | รูป 1-4แผนภาพการติดตั้งหม้อแปลงรวมแม่ย่อย |

1 การต่อสายดินของห้องแรงดันต่ํา 2 ปลอกแรงดันต่ํา 3 ตะขอ 4 ห้อง เอชyperbaric 5 ถังน้ํามันเชื้อเพลิง 6 อ่างระบายความร้อน 7 ติดผนัง 8 พอร์ตฉีดน้ํามัน 9 วาล์วบรรเทาความดัน 10 เครื่องวัดระดับน้ํามัน | 11 เครื่องวัดความดัน 12 สวิตช์โหลด 13 ฟิวส์ปลั๊กอิน 14 แทปเปลี่ยน 15 การต่อสายดินในห้อง hypervoltic 16 ซ็อกเก็ตปลอกแรงดันสูง 17 ถั่วอะไหล่ 18 การต่อสายดินของห้องแรงดันต่ํา 19 ป้ายชื่อ |
กําลังการผลิตหม้อแปลง (เควีA) | A | บี | F - รูปถ่ายของ โรงแรมเดอะ คริสเทล | จี | เค เค |
100 | 2000 | 1400 | 660 | 1400 | 730 |
125 | 2000 | 1400 | 660 | 1400 | 730 |
160 | 2000 | 1400 | 660 | 1400 | 730 |
200 | 2000 | 1400 | 660 | 1400 | 730 |
250 | 2000 | 1400 | 660 | 1400 | 730 |
315 | 2000 | 1400 | 660 | 1400 | 730 |
400 | 2000 | 1400 | 660 | 1400 | 730 |
500 | 2000 | 1400 | 660 | 1400 | 730 |
630 | 2205 | 1400 | 800 | 1465 | 755 |
800 | 2205 | 1400 | 800 | 1465 | 755 |
1000 | 2205 | 1400 | 800 | 1465 | 755 |
1250 | 2205 | 1400 | 800 | 1465 | 755 |
หมายเหตุ: (๑)มิติข้างต้นมีไว้สําหรับการอ้างอิงเท่านั้น
(๒)ประเภทเทอร์มินัลและประเภทตาข่ายแหวนมีขนาดโดยรวมเหมือนกัน
ภาคผนวก 2 ฟิวส์ปลั๊กอิน
ดึงหลอดฟิวส์ออก
1.ดึงวาล์วปลดปล่อยความดันออกและหลังจากที่ความดันในถังน้ํามันเชื้อเพลิงได้รับการปลดปล่อยอย่างสมบูรณ์ให้ติดตะขอหลุมการทํางานของท่อฟิวส์ด้วยคันโยกการทํางานที่เป็นฉนวนกันความร้อน
2.กดด้ามจับการทํางานลงเพื่อให้เบ็ดที่เคลื่อนย้ายได้ของด้ามจับการทํางานล็อครูการทํางานของหลอดฟิวส์และหมุนเบ็ดล็อคของหลอดฟิวส์ 90 °เพื่อปลดสภาวะล็อคระหว่างหลอดฟิวส์และที่นั่งฟิวส์
3.ดึงหลอดฟิวส์ขึ้นไปประมาณ 100 มม. อยู่ไม่กี่วินาทีและค่อยๆดึงหลอดฟิวส์ออกหลังจากที่น้ํามันบนหลอดฟิวส์ไหล
4.ค้างที่จับไว้และเช็ดคราบน้ํามันออกจากหลอดฟิวส์
หมายเหตุ: หากพบว่าน้ํามันไหลออกจากยึดฟิวส์ควรดึงวาล์วปลดปล่อยความดันออกอีกครั้งเพื่อสมดุลความดันภายในและภายนอกถัง
เปลี่ยนฟิวส์
1.คล่อน๊อตของท่อหลอมด้วยประแจและคลายน๊อตอื่น ๆ ด้วยประแจอื่น(ภาพที่ 2-1)
2.คลายสลักเกลียวปลายและถอดฟิวส์ออก(รูปที่ 2-2)
(หมายเหตุ: หากฟิวส์ไม่ได้หลอมไฟฟ้ารูปช่องทางแบนจะต้องยืดก่อนที่จะสามารถถอดฟิวส์)
3.ตรวจสอบด้านในของท่อฟิวส์เพื่อความสะอาด
4.ใส่ฟิวส์ใหม่จากปลายด้านใดด้านหนึ่งและอิเล็กโทรดที่เปลวไฟฟิวส์ถูกติดตั้งไว้ล่วงหน้าที่ปลายที่จับ(รูปภาพที่ 2-3)
5.ติดตั้งท่อฟิวส์และยึดด้วยประแจแรงบิดประมาณ 5.7-8N.m
6.แบนขั้วไฟฟ้ารูปช่องทางติดตั้งสลักเกลียวภายในใช้ประแจหนึ่งเพื่อจับละลายใช้ประแจอีกประแจหนึ่งเพื่อกระชับสลักเกลียวปลายแรงบิดประมาณ 5.7-8N.m จากนั้นคลายสลักเกลียวปลายตรวจสอบว่าขั้วไฟฟ้ารูปช่องทางแบนเพื่อให้แน่ใจว่าการติดต่อที่ดีหรือไม่
ติดตั้งฟิวส์ปลั๊กอิน
1.ตะขอหลุมการทํางานของท่อฟิวส์ด้วยคันโยกการทํางานที่หุ้มฉนวน
2.ใส่หลอดฟิวส์ลงในที่นั่งฟิวส์หมุนตะขอล็อคของหลอดฟิวส์ 90 องศาและกระชับล็อคเพื่อติดตะขอฟิวส์เพื่อให้แน่ใจว่าซีลระหว่างที่นั่งหลอดฟิวส์
ภาพ 2-1 | ภาพ 2-2 | ภาพ 2-3 |
ภาคผนวก 3 แขนช่องเดียวและแขนช่องคู่
ทําความสะอาดท่อช่องทางคู่หล่อลื่นและติดตั้ง 1.ทําความสะอาดพื้นผิวสัมผัสของปลอกแบบสองผ่านและที่นั่งปลอกโดยอ้างอิงถึงความต้องการของปลอกแบบผ่านเดียวทาจาระบีและเกลียวปลอกแบบสองผ่านในทิศทางเข็มนาฬิกาจนกระทั่ง ratchet ไม่ได้ใช้งานและทําให้เสียงหลังจากการกระชับ 2.ใช้แผ่นยึดเพื่อวางตําแหน่งท่อคู่ 3.ใช้ 0ลวดทองแดงขนาด 8 มม. หรือเทียบเท่าเพื่อเชื่อมต่อรูสายดินของท่อคู่กับสายดินระบบ 4.ติดตั้งชิ้นส่วนที่ตรงกัน (เช่นปลั๊กข้อศอกสายฟ้าหรือฝาครอบป้องกันฉนวนกันความร้อน ฯลฯ) |
|
ทําความสะอาดท่อหล่อลื่นและติดตั้งช่องทางเดียว 1.ทําความสะอาดพื้นผิวสัมผัสของปลอกและที่นั่งหลอดทาจาระบีสกรูเข้าไปในปลอกแบบผ่านเดียวตามเข็มนาฬิกาและกระชับด้วยเครื่องมือพิเศษ (เจ็ดรอบครึ่ง) หมายเหตุ: หากเครื่องมือติดตั้งด้วยแรงบิดแรงบิดคือ 13.5N.ม. 2.พื้นดินรูสายดินของปลอกผ่านเดียวด้วยลวดยืดหยุ่น |
|
ภาคผนวก 4 ปลั๊กข้อศอก
|
|
รูป 4-1 | รูป 4-2 |
คําแนะนําสําหรับการติดตั้งปลั๊กข้อศอก
1 .การรักษาแบบแยกเฟสสายเคเบิลสามแกน
☆ตัดออก ปลอกด้านในและด้านนอกที่ สายเคเบิล สิ้นสุด > 800mm.
☆ใส่ถุงมือสาขาที่ขั้นตอนการแยกความร้อนหดตัวปลอก (ชั้นเกราะสายดิน) ในแต่ละสายเฟสเดียวดูรูป 4-2 สําหรับแต่ละขนาดการรักษา.
2 .ข้อศอกปลั๊กติดตั้ง
☆ทําความสะอาดพื้นผิวของตัวนําด้วยแปรงสายเคเบิลวางข้อต่อกดเย็นบนตัวนําสายเคเบิลเกลียวตัวนําเชื่อมต่อเข้าไปในรูสกรูของข้อต่อกดเย็นและใส่เดี่ยว (คู่) ผ่านปลอกในอนาคต
☆เลือกเครื่องมือจีบที่เหมาะสมการจีบควรเริ่มจากการเชื่อมต่อทองแดงและอลูมิเนียมของข้อต่อจีบเย็นและหมุน 90° สําหรับแต่ละกด, และถอดน้ํามันหล่อลื่นส่วนเกินด้วยผ้าอ่อน
☆ดึงตัวนําที่เชื่อมต่อออกและสกรูลง
☆ทําความสะอาดและหล่อลื่นพื้นผิวสายเคเบิลและด้านในของปลั๊กข้อศอกค่อยๆผลักสายเคเบิลเข้าไปในปลั๊กข้อศอกและแนะนําการเชื่อมต่อด้วยขั้วต่อที่ป้องกันรูสกรูบนข้อต่อกดเย็นสามารถมองเห็นได้ที่ปลายปลั๊กข้อศอก
☆สกรูตัวนําเชื่อมต่อเข้าไปในรูสกรูของข้อต่อกดเย็นและกระชับด้วยประแจติดตั้งจนกว่าจะบิด 180. (ถ้า.)
ด้วยประแจอื่น ๆ แรงบิดประมาณ 12.4N.m) o
☆ใช้เทปกาวในตัวฉนวนกันความร้อนเพื่อห่อปลั๊กข้อศอกและแขนหดความร้อนสายเคเบิล
☆ใช้สายดินเชื่อมต่อรูดินของปลั๊กข้อศอกกับจุดสายดินของระบบ
โหลดป้อนข้อมูล
☆ควรตรวจสอบระยะทางการทํางานที่เพียงพอ
☆ใช้แท่งทํางานฉนวนกันความร้อนเพื่อติดตะขอหลุมการทํางานปลั๊กข้อศอก
☆ จัดแนวตัวนําเชื่อมต่อของปลั๊กข้อศอกกับตัวนําแขนและผลักไปข้างหน้าจนกว่าคุณจะรู้สึกว่ามันเชื่อมต่อกันนั่นคือให้แน่ใจว่าจะผลักไว้ในสถานที่
☆การดําเนินงานควรรวดเร็วแม่นยําเด็ดขาดและมีประสิทธิภาพ
โหลดตัด
☆ ตะขอหลุมการดําเนินงานปลั๊กข้อศอกด้วยคันโยกการดําเนินงานฉนวนกันความร้อน
☆หันคันโยกการทํางานที่หุ้มฉนวนซ้ายและขวาเพื่อลดแรงเสียดทานระหว่างพื้นผิวปลอกและปลั๊กข้อศอก
☆ดึงปลั๊กข้อศอกออกได้อย่างรวดเร็วแม่นยําเด็ดขาดและมีประสิทธิภาพระมัดระวังไม่ให้สัมผัสตัวนํากับสายดินที่อยู่ใกล้เคียง
☆แขวนปลั๊กข้อศอกบนตัวเดียว (คู่) ผ่านขั้วต่อที่มีคันโยกการทํางานที่เป็นฉนวนกันความร้อน
☆ใช้คันโยกการดําเนินงานฉนวนกันความร้อนเพื่อครอบคลุมฝาป้องกันฉนวนที่เชื่อมต่อกับสายดินบนส่วนที่เป็นตัวนําไฟฟ้า
แจ้งเตือน: การดําเนินงานของปลั๊กข้อศอกควรดําเนินการโดยบุคลากรที่คุ้นเคยกับขั้นตอนความปลอดภัยและการดําเนินงานของระบบไฟฟ้า
ใช้ปลั๊กข้อศอกเพื่อแยกโหลดเฉพาะในสถานการณ์ฉุกเฉิน (หรือพิเศษ) และแนะนําให้ใช้สวิตช์ที่สอดคล้องกัน
ปลั๊กข้อศอกไม่สามารถใช้เพื่อปิดความผิดพลาดลัดวงจร
ภาคผนวก 5 อุปกรณ์ผ่านเดี่ยว (คู่) และฝาครอบป้องกันฉนวนกันความร้อน
☆ขั้วต่อผ่านเดี่ยว (คู่) ใช้สําหรับเสียบเข้ากับปลั๊กข้อศอกสดแยกสายเคเบิลสดแบ่งส่วนหรือใช้เพื่อเสียบและดึงไม่มี
ปลั๊กข้อศอกไฟฟ้ามีบทบาทในฝุ่นน้ําและความชื้น
☆ขั้วต่อแบบสองทางสามารถเชื่อมต่อกับปลั๊กแบบข้อศอกที่ปลายด้านหนึ่งและตัวหยุดไฟกระชากแบบข้อศอกที่อีกด้านหนึ่ง
☆ฉนวนกันความร้อนป้องกันฝาให้ฉนวนกันความร้อนและซองป้องกันสําหรับแขนและข้อต่อ
เดี่ยว (คู่) ผ่านการติดตั้ง
1.ถอดฝาครอบป้องกันการขนส่งทําความสะอาดและหล่อลื่น {อ้างอิงถึงความต้องการของแขนเดี่ยว (คู่) ผ่านแขน}
2.ใช้ลวดทองแดงเพื่อเชื่อมต่อเดี่ยว (คู่) ผ่านหลุมต่อสายดินร่วมกับสายดินระบบ
3.แขวนเดี่ยว (คู่) ผ่านข้อต่อบนผนังแขวนและกระชับกลอนยึด
4.ซีลข้อต่อที่สอดคล้องกันด้วยฝาฉนวนกันความร้อน
หมายเหตุ: ส่วนประกอบที่เกี่ยวข้องทั้งหมดจะต้องอยู่ในสถานะที่ไม่มีไฟก่อนที่จะสามารถติดตั้งและถอดขั้วต่อผ่านเดี่ยว (คู่)
การติดตั้งหมวกป้องกันฉนวนกันความร้อน
1.ทําความสะอาดและหล่อลื่นพื้นผิวด้านนอกของข้อต่อ (หรือปลอก) ที่เกี่ยวข้องกับพื้นผิวด้านในของฝาครอบป้องกันฉนวน
2.เชื่อมต่อสายดินของฝาครอบป้องกันฉนวนกับสายดินของระบบ
3.ตะขอแจ็คหมวกป้องกันด้วยคันโยกการทํางานที่หุ้มฉนวนและผลักหมวกฉนวนเข้าไปในข้อต่อที่เกี่ยวข้อง (หรือแขน) จนกว่าจะเชื่อมต่อเข้ากับสถานที่
ถอดฝาป้องกันฉนวน
1.ตะขอฝาครอบป้องกันด้วยคันโยกการดําเนินงานฉนวนกันความร้อน
2.หมุนฝาครอบป้องกันซ้ายและขวาเพื่อลดแรงเสียดทานของพื้นผิวสัมผัสและดึงกลับอย่างหนักเพื่อถอดฝาครอบป้องกัน
ภาคผนวก 6.ตัวบ่งชี้ความผิดพลาดและตัวบ่งชี้สด
ตัวบ่งชี้ความผิดถูกติดตั้งไว้ที่จุดทดสอบของปลั๊กข้อศอก, เมื่อสายไหลผ่านตัวบ่งชี้ของตัวบ่งชี้ความผิดพลาดมีสีขาวและพลิกเป็นสีแดงโดยอัตโนมัติบ่งชี้ว่าสายอยู่ในสถานะ "ความผิดพลาด" ในเวลานี้เมื่อวงจรกลับสู่ภาวะปกติระบบจะรีเซ็ตหน้าต่างตัวบ่งชี้โดยอัตโนมัติและเปลี่ยนเป็นสีขาวตัวบ่งชี้ความผิดพลาดมีเกณฑ์ที่สามารถเลือกได้สองเกณฑ์คือสูงและต่ําโดยเกณฑ์ต่ําประมาณ 400A (RMS) และเกณฑ์สูงประมาณ 800A (RMS)ในขณะที่ส่งมอบหน้าต่างแสดงผลของตัวบ่งชี้ความผิดถูกตั้งค่าไว้ในตัวบ่งชี้ความผิด (เช่นจะแสดงเป็นสีแดง) และหลังจากการติดตั้งเมื่อแรงดันไฟฟ้าสายถึง 5เควี หลังจากไม่กี่นาทีตัวบ่งชี้ความผิดพลาดจะอยู่ในสถานะการทํางานปกติและหน้าต่างแสดงผลจะรีเซ็ตเป็นสถานะปกติโดยอัตโนมัติ (เช่นจะแสดงเป็นสีขาว)
หมายเหตุ: เฉพาะเมื่อแรงดันไฟฟ้าสายต่อสายดินของสายถึง มากกว่า 5เควี ตัวบ่งชี้ความผิดพลาดสามารถแสดงความผิดพลาดและรีเซ็ตสําหรับการจัดเก็บพลังงาน
ตัวบ่งชี้สดติดตั้งอยู่บนจุดทดสอบของปลั๊กข้อศอก, และการกระพริบอย่างต่อเนื่องของไฟแสดงสถานะบ่งชี้ว่าเส้นอยู่เพื่อแจ้งเตือนผู้ค้นหาเส้น
ตัวบ่งชี้ความผิดพลาดและตัวบ่งชี้สดเป็นผลิตภัณฑ์ที่ปิดผนึกอย่างเต็มที่สําหรับใช้ในสภาพภูมิอากาศที่หลากหลายและสถานะการบ่งชี้ของพวกเขา จะไม่เปลี่ยนแปลงเนื่องจากการสั่นสะเทือนหรือช็อตทางกล
ขั้นตอนการติดตั้ง:
1.การติดตั้งตัวบ่งชี้แบ่งออกเป็นสองสถานการณ์: หัวสายเคเบิลมีชีวิตอยู่และไม่มีชีวิตอยู่ภายใต้สถานการณ์ปกติหัวสายเคเบิลควรถูกปิดและต่อสายดินก่อนการติดตั้ง
2.ถอดฝาครอบป้องกันของจุดทดสอบปลั๊กข้อศอกด้วยคันโยกการทํางานที่ฉนวนกันความร้อน (จุดทดสอบควรปราศจากคราบสกปรกและสนิม)
3.ตัวบ่งชี้การหล่อลื่นติดตั้งพื้นผิวด้านในของบูต
4.ตะขอหลุมการทํางานของตัวบ่งชี้ด้วยคันโยกการทํางานที่หุ้มฉนวนวางตัวบ่งชี้ไว้ที่จุดทดสอบของปลั๊กข้อศอกและหมุนไปยังตําแหน่งที่เหมาะสมคําเตือน: สกปรกชื้นหรือความผิดพลาดอื่น ๆ ของจุดทดสอบหรือตัวบ่งชี้อาจทําให้ตัวบ่งชี้สดแสดงให้เห็นผิดพลาดว่าสายหมดไฟณ
ก่อนที่จะใช้งานอุปกรณ์ที่เกี่ยวข้องให้แน่ใจว่าใช้วิธีการทดสอบอื่น ๆ ที่ได้รับการอนุมัติจากมาตรฐานแห่งชาติเพื่อตรวจสอบว่าสายมีกระแสไฟฟ้า